8名から最大26名までの会議や商談に最適な、落ち着いたプライベート空間です。ホテルライクな内装が、大切なお客様をお迎えする際の上質なおもてなしを演出。スライディングウォールで3つの部屋(A・B・C)をつなげることで、人数や用途に合わせた柔軟なレイアウトが可能です。全室にモニターを完備しており、スムーズな会議進行をサポートします。

役員会議や重要な商談に最適。ホテルライクな内装が、格調高い空間を作り出します。

採用面接の会場や、大規模セミナー開催時の来賓・講師控室としてもご利用いただけます。






| 収容人数 | ミーティングルームA:8名 ミーティングルームB:8名 ミーティングルームC:10名 ミーティングルームA+B:16名 ミーティングルームB+C:18名 ミーティングルームA+B+C:26名 |
||||||||||||||
|---|---|---|---|---|---|---|---|---|---|---|---|---|---|---|---|
| 面積 | 最大81㎡ | ||||||||||||||
| 天井高 | 3.0m | ||||||||||||||
| 料金 |
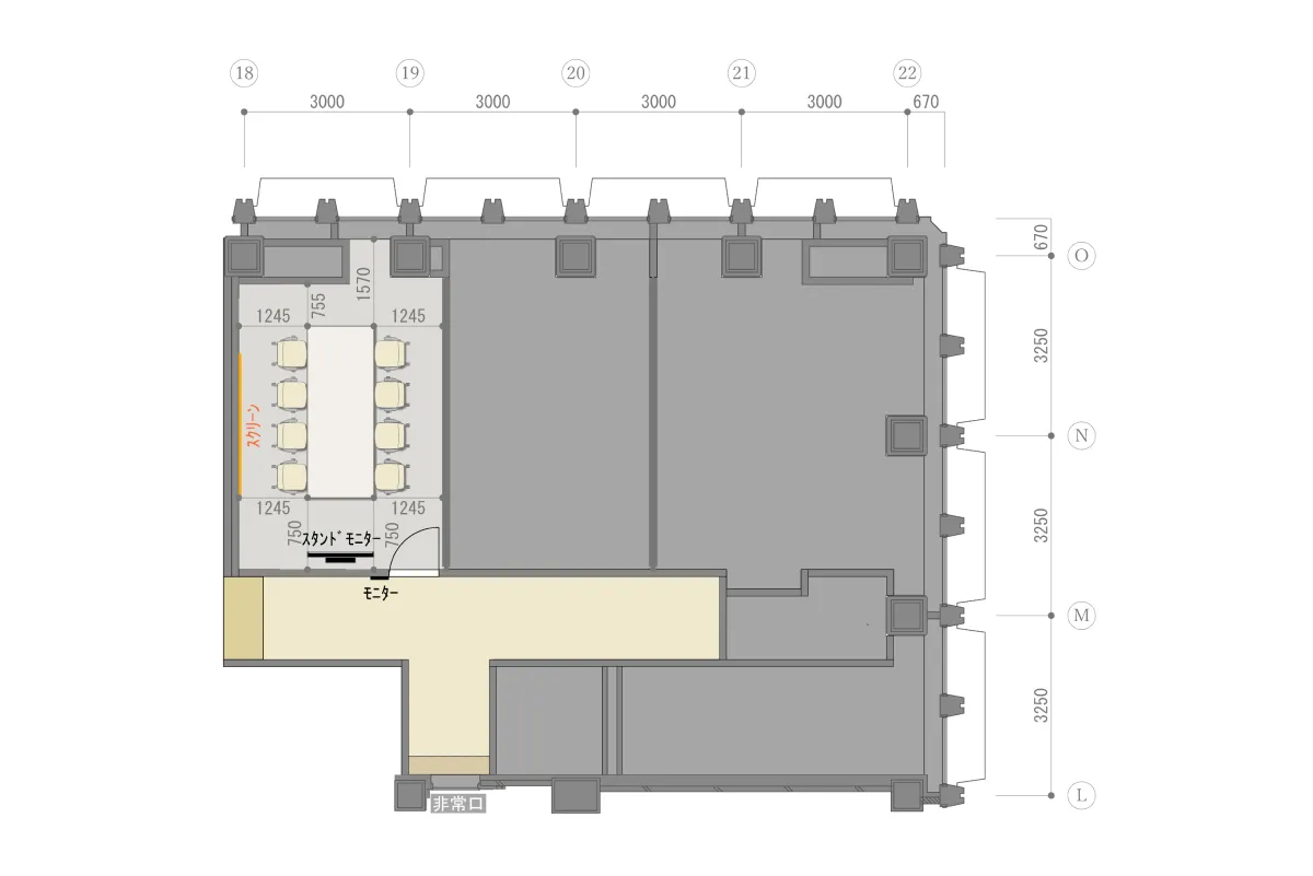
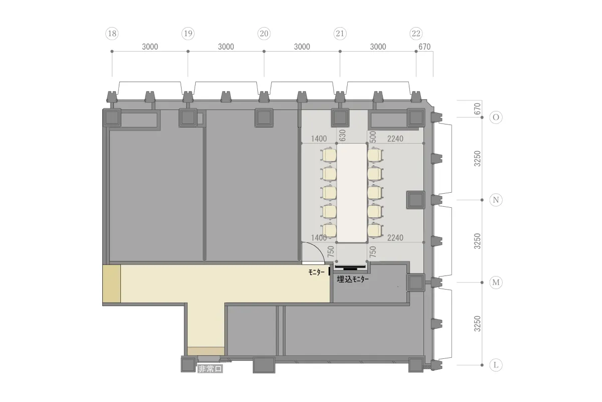
ミーティングルームA
|
空室状況・ご内覧のご相談はお気軽に






65型4K UHD液晶ディスプレイ(ミーティングルームA/B)
55型4K UHD液晶ディスプレイ(ミーティングルームC)
プロジェクター&スクリーン(ミーティングルームA+B/A+B+C連結利用時)
定点カメラ【中継用】
高速インターネット回線
演台
ハンガーラック
傘立て※料金はすべて税別です。
ホワイトボード
演台(追加)
司会者卓
花台
椅子(追加)
テーブル(追加)※料金はすべて税別です。
コピー(白黒)
コピー(カラー、サイズ問わず)※料金はすべて税別です。

重厚感のある内装は、経営に関わる重要な会議に最適です。壁やカーペットもホテル仕様の上質なものが使われており、外部の音を気にすることなく、落ち着いた環境で密度の高い議論を行っていただけます。
| ご使用人数 | 16名(ミーティングAB利用) |
|---|---|
| 使用レイアウト | 対面形式 |

大切なお客様をお招きする商談の場として。全室にモニターが設置されているため、PC画面を共有しながらのプレゼンテーションもスムーズです。
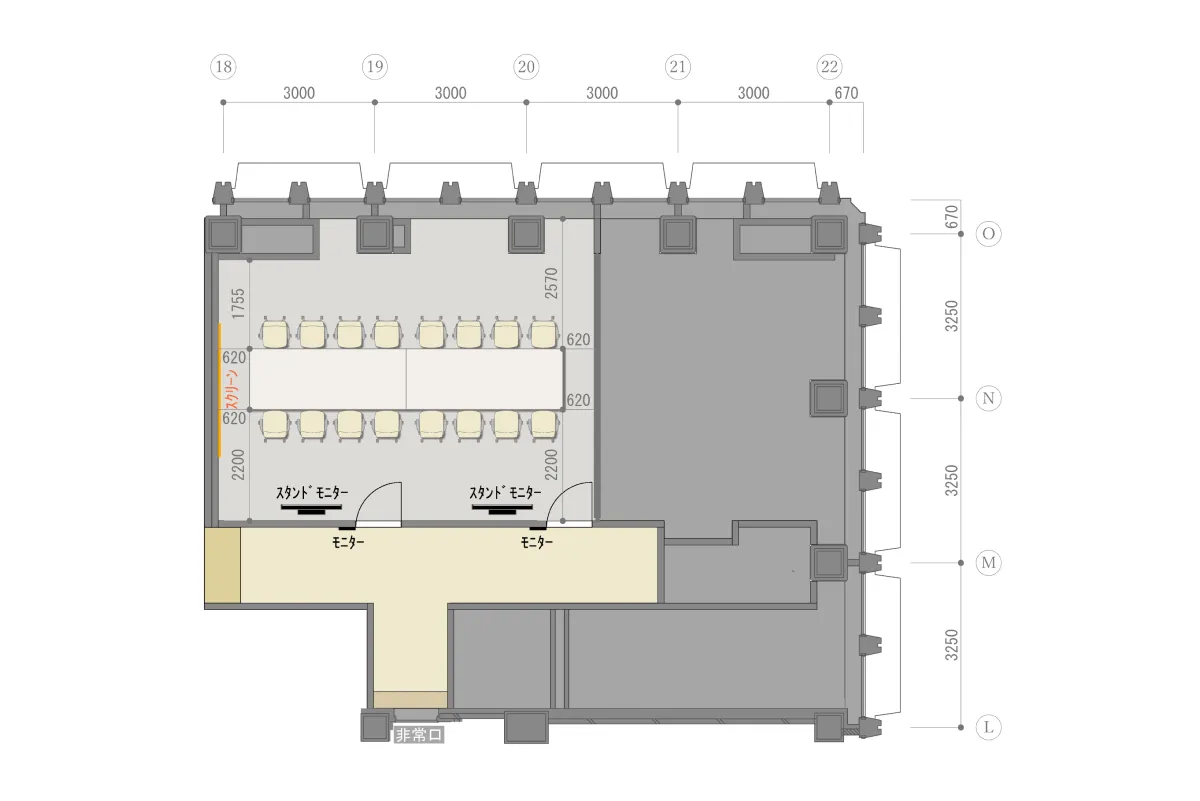
| ご使用人数 | 26名(ABC一体利用) |
|---|---|
| 使用レイアウト | 対面形式 |
資料ダウンロード
会場図面など、情報を集約した資料を無料でダウンロードできます。
施設のご使用に関するQ&Aはこちらよくあるご質問